Ganzjähriges Wohnen im Garten – Ein echtes winterfestes Haus Dank exzellenter Dämmwerte ist das HyggeHut perfekt für das österreichische Klima geeignet und kann das ganze Jahr über als Wohnraum, Büro oder Gästehaus genutzt werden.
Hervorragende Isolierung für niedrige Energiekosten:
- Wände: Natürliche Schafwolle dichtet die Blockfugen ab (U-Wert: 0,56 W/(m²K)).
- Boden: Hochwertige PIR-Dämmung hält die Kälte von unten ab (U-Wert: 0,19 W/m²K).
- Dach: Effektive Mineralwolle schützt vor Wärmeverlust nach oben (U-Wert: 0,17 W/m²K).
Ausstattung für höchsten Komfort:
- Klima & Licht: Holzfenster mit Isolierverglasung und spezieller Solarspiegelfolie sorgen für angenehme Temperaturen – kühl im Sommer, warm im Winter.
- Heizung: Eine elektrische Fußbodenheizung ist bereits in allen Räumen verlegt und garantiert wohlige Wärme.
- Praktische Extras: Ein separater Abstellraum mit Waschmaschinenanschluss, moderne LED-Beleuchtung (innen & außen), reichlich Steckdosen sowie ein installierter 50-Liter-Warmwasserboiler machen das Haus sofort startklar.
Das HyggeHut beweist, dass man für ein mobiles Zuhause keine Kompromisse bei Qualität und Design eingehen muss.
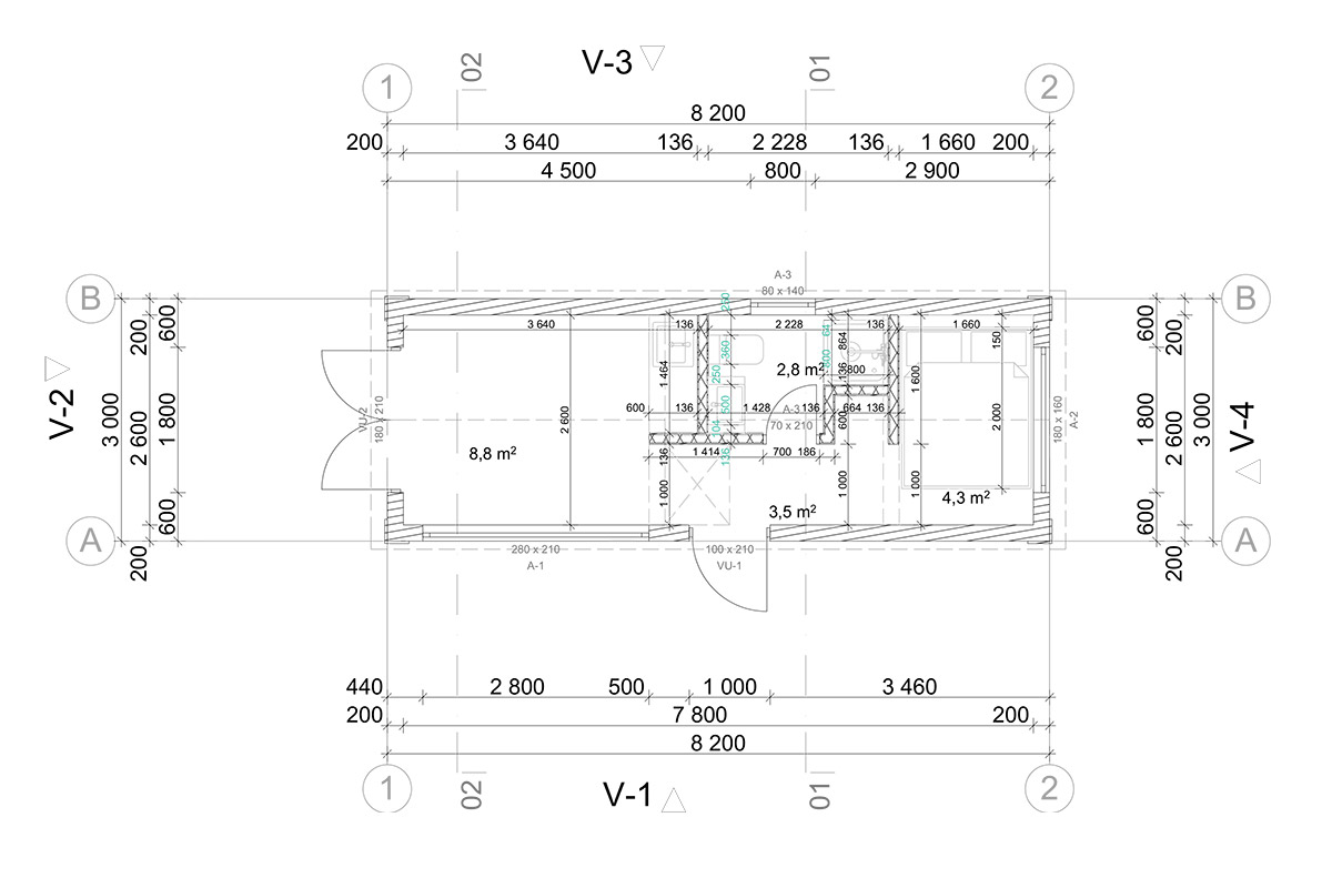
| Breite: | 820 cm |
| Tiefe: | 300 cm |
| Höhe: | 249 cm |
| Wandstärke: | 200 mm |
| Nutzfläche: | 19.8 m² |
| Schlafboden: | 7.3 m² |
| Dacheindeckung: | 30 m² |
| Zimmer: | 4 |
| Verglasung: | Doppelverglasung, gehärtetes Sicherheitsglas |
















Reviews
There are no reviews yet.